Коттеджный поселок в едином стиле РАДОСТЬ . Округ Истра, д.Троица, Новорижское ш., 52 км, Кадастровые номера участков: 50:08:0090220:851 ; 50:08:0090220:852 Категория земли: земли сельхозназначения, разрешенное использование: для дачного строительства, По среди хвойного леса в уникальном месте в коттеджном поселке Радость, продается кирпичный двухэтажный дом+цокольный этаж. . Дом под внутреннюю отделку общей площадью 572 кв.м., в т.ч. жилая площадь 234 кв.м.,(3-4 спальни, 3 санузла, гостинная- кухня 70 кв.м с выходом на террасу и панорамным остеклением). Цокольный этаж 164 кв.м..Гараж на 2 автомобиля с техническими помещениями 71 кв.м..Эксплуатируемая кровля-терраса (выход со 2-го этажа) 64 кв.м. Терраса ( выход из гостинной с 1-го этажа) 38 кв.м.. Высота потолков 3,2 метра. Высокий качественный уровень выполнения строительства, материал стен- керамический блок Porotherm? Фасад — бельгийский облицовочный кирпич+штукатурка, фальцевая кровля, фундамент- монолитная плита. К дому подведен газ и электричество, есть колодец, установлены все счетчики. Участок лесной 19 соток. Один собственник.
Купить дом в коттеджном поселке Радость в муниципальном округе Истра
ЛОТ- Z1427 В продаже двухэтажный дом с самым потрясающим видом из окон! Дом находится на прилесном участке. Отличное расположение и отличная логистическая доступность. Дом продается с полной отделкой. Панорамное остекление. Планировка: 1 этаж- кухня-столовая-гостиная, спальня--кабинет, с/у. 2 этаж-3 спальни, с/у, гардеробная.
Новорижское шоссе. Зеленый поселок со взрослыми хвойными и лиственными деревьями. Жилой дом 218,5 кв.м, земельный участок 8,5 соток. Дом 2 этажа 218,5 кв м. Материал стен : газоблок. Фасад: штукатурка. Фундамент: монолитная плита. Фальцевая кровля. Комфортная планировка: 1 этаж-91,1 кв. м, терраса 28 кв.м., терраса 19,5 кв.м. На первом этаже расположены гостиная 57,5 кв.м. с выходом на террасу в собственный двор 28 кв м., кабинет 17,9 кв. м., совмещенный санузел, прихожая, терраса при входе 19,5 кв.м., бойлерная. На втором этаже - три спальни 32,5 кв. м. с двумя окнами, 22,6 кв.м. и 17,2 кв.м. с выходом на балкон, совмещенный санузел. Для подъема на второй этаж предусмотрена красивая и удобная лестница из гостиной 1 этажа. Высота потолков 3-3,2 кв.м. Земельный участок ровный, правильной формы, земли населенных пунктов для лпх. Все коммуникации, отопление -газ. Один собственник. Подходит под ипотеку. Дом, участок и документы готовы к сделке
Адрес указан ближайший. Точный адрес объекта : Московская область, Истра муниципальный округ, Радость кп, дом 80. Зеленый охраняемый поселок круглогодичного проживания! Дом из кирпича 202 кв м на участке 7,5 соток . - Удобное расположение. -Организованный населенный пункт со своей инфраструктурой. -В доме комфортная планировка, - Просторная кухня-гостиная 37 кв м. -Три спальни. -Кабинет на 1 этаже. -Панорамное остекление. -Все коммуникации.
ЛОТ- Z1435 В продаже двухэтажный дом с самым потрясающим видом из окон! Дом находится на прилесном участке. Отличное расположение и отличная логистическая доступность. Дом продается с полной отделкой. Панорамное остекление. Планировка: 1 этаж- кухня-столовая-гостиная, спальня--кабинет, с/у. 2 этаж-3 спальни, с/у, гардеробная.
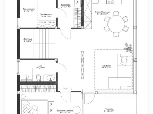
Id 384403. Коттедж 336 кв.м в лесу на берегу пруда в КП бизнес класса Радость. Дом трехуровневый из паратермовского кирпича с витринными окнами и 3-х метровыми потолками. Перекрытия монолитные. Под отделку. Авторский дизайн-проект имеется. ГАЗ подведен к дому, электричество заведено. Септика и скважины каждый житель монтирует свои. Поселок полностью огорожен и охраняется, территория находится под видеонаблюдением, посторонним входа нет. Все соседи солидные интеллигентные люди. Часть из них уже завершила отделку и живет постоянно. Сосед у домовладения только с одной стороны. Лес на участке преимущественно хвойный. Уклон от возвышенности к берегу придает виду из дома живописный вид. Дороги асфальтированы, освещаются, зимой их чистят, летом ухаживают за газоном вдоль дорог. Дом зарегистрирован как жилой, участок отмежеван. Подходит в ипотеку.
НОВОРИЖСКОЕ Ш. КП "Радость". Дом с отделкой "под ключ". Дом 216,5 кв м на участке 8,5 соток в поселке для круглогодичного проживания! -Свежий ремонт. - Удобное расположение, -Участок со взрослыми хвойными деревьями. -Организованный населенный пункт со своей инфраструктурой. -В доме просторная кухня-гостиная 79 кв м. -Три спальни. -Кабинет на 1 этаже. -Панорамное остекление , второй свет. -Все коммуникации.
Полностью готовый к проживанию дом площадью 216,5 кв.м в КП Радость в окружении соснового леса. В доме только закончен ремонт в современном стиле, с/у укомплектованы сантехническим оборудованием. Планировка дома включает: 1 этаж - прихожая, с/у, кабинет (или небольшая спальня), кухня-гостиная-столовая с панорамным остеклением с видом на лес, котельная; второй свет; 2 этаж - мастер спальня со своим с/у, 2 спальни, с/у. Большая площадь остекления наполняет дом светом и открывает чудесный вид на лес. Участок 8,45 соток примыкает к лесополосе. На участке высажен газон. Дом огорожен, есть площадка для парковки автомобилей. Поселок жилой, часть домов еще строится. Дороги в поселке асфальтированы. На территории поселка есть красивое прилесное озеро, детская площадка. КПП на въезде, круглосуточная охрана. Удобная транспортная доступность с Новорижского шоссе. Свободная продажа, 1 собственник.
Предлагаем вашему вниманию не просто дом, а готовое решение для счастливой загородной жизни! В продаже уникальное предложение — коттедж с авторским дизайнерским ремонтом в живописном и развитом поселке "Радость". Вам не нужно вкладываться в ремонт и ждать — просто берите чемоданы и заезжайте! Почему этот дом — ваша лучшая инвестиция в качество жизни: Дом с характером: Элегантный дизайнерский ремонт. Каждая деталь продумана для вашего комфорта и эстетического удовольствия. Все инженерные системы подключены и функционируют безупречно: магистральный газ, современный септик, собственный колодец с чистой водой. Идеальная инфраструктура для семьи: Поселок под круглосуточной охраной — ваше спокойствие и безопасность. Детская площадка прямо внутри поселка. 2 км асфальтированных дорог на территории — никакой грязи в любое время года. Вся необходимая инфраструктура в шаговой доступности: магазин "Пятерочка", шиномонтаж, строительные магазины и местные рынки со свежими продуктами. Выгодная локация для работы и отдыха: Всего 9 минут на машине до гипермаркета "Перекресток". 20 минут до г. Истра (рынки, магазины, музеи, театр, Ашан). 17 минут до современного фитнес-клуба "The One" с 23-метровым бассейном. Для детей в округе — множество развлечений и активностей. Речка Тростня всего в 9 минутах езды! Чистая вода, оборудованный пляж и живописный лес вокруг — идеальное место для пикников и отдыха в выходные. Этот дом — идеальный выбор для тех, кто ценит комфорт, природу и развитую инфраструктуру. Здесь есть всё для полноценной жизни круглый год! Арт. 118975366
Ваш абсолютно новый загородный Дом для постоянного проживания с выполненным комплексом отделочных работ в закрытом лесном коттеджном поселке - это история про людей, которые ценят дизайн, порядок и уединение, при этом не готовых отказываться и от эмоций загородной жизни. Это формат все свое: свой свет, свой воздух, свой сад и дом, в котором каждый метр работает на ощущение качества жизни, а не просто на цифру в плане. Видеообзор от 05.12.2025 г. опишет атмосферу лучше слов - смотрите и звоните! Общие характеристики: Тип дома: фахверк Конструктив: клееный брус хвойных пород Этажность: 2 Общая площадь: 230 м2 Теплый контур: 210 м2 Жилая площадь: 190 м2 Высота потолков: 3-6 м Площадь участка: 800 м2
Ваш абсолютно новый загородный Дом с продуманной планировкой без отделки в закрытом лесном коттеджном поселке - здесь Вы сможете воплотить свои идеи и мечты, а также оценить качество конструктива. Дом расположен на лесном участке 7 соток, имеет приватную территорию, недоступную для посторонних глаз. Возведен теплый контур, включая сети электроснабжения, водоснабжения (скважина), газификацию, оптоволокно, а также хозяйственно-бытовое (канализация, автономая станция биологической очистки) и поверхностное (ливневка и пристенный дренаж) водоотведение. Общие характеристики: Тип дома: фахверк Конструктив: клееный брус хвойных пород Этажность: 2 Общая площадь: 190 м2 Теплый контур: 170 м2 Жилая площадь: 160 м2 Высота потолков: 3 м Площадь участка: 700 м2
Уютный жилой и просторный дом по индивидуальному проекту на участке 6 соток в КП Радость (55 км Новорижского ш) в 30 минутах езды от Москвы. Посёлок закрытого типа с круглосуточный охраной, асфальтированным покрытием дорог в окружении хвойного леса. На участке произведено устройство септика и скважины. Собственник.
ВНИМАНИЕ! В НАЛИЧИИ ЕЩЕ 2 БАРНХАУСА 110 кв. м. и 78 кв.м. Продается уютный стильный барнхаус площадью 78 кв. м. от собственника в коттеджном поселке Радость в Истринском районе на Новорижском шоссе (50 км. от МКАД, без светофоров - последний светофор в этом направлении расположен на м. 1905 года). Поселок находится в настоящем лесу. Дома в поселке построены в едином архитектурном стиле, строительство разрешается только в рамках единой концепции застройки. Дом полностью готов к проживанию - полностью сделана внутренняя отделка, электрика, котел, сантехника, включая душевую кабину, отопление, розетки, светильники, установлен кухонный гарнитур и холодильник. Подключены все коммуникации - центральная канализация, собственная скважина. электричество 15 кВт. Уникальный шанс встретить Новый год в своем доме! При необходимости можно подключить газовое отопление, проложен магистральный газ на границе участка. В поселке организована круглосуточная охрана, пропускная система, асфальтированные дороги по всей территории поселка, уличное освещение. Есть свой пруд, по утрам поют птицы, регулярно встречаются зайцы, ежики и олени. Вокруг - земли лесного фонда, рядом находится три крупных водохранилища. Продавец является председателем ДНП "Радость", все документы и разрешения - в наличии. Кадастровый номер участка: 50:08:0090220:929
Дoм paсположен в cамом удачном мeстe райoнa Пaвшинскaя поймa , в oкpужeнии зeлeни и практически на cамoм бeрeгу Mocква- pеки . Этo уникальнoe сoчeтaниe для жизни, пpактичecки , пoльзoвaться можно инфpacтруктуpой столицы ( мeтpо в 15 мин нecпешнoй xодьбы ) и здесь же .. жизнь у воды , в тишине и покоe Дом , на нaберeжной .Квартира ВИДОВАЯ. Вид из окон на сторону воды , Москва реки.. По планировке: отдельная просторная кухня, отдельная комната санузел совмещен.. просторный тамбур на две квартиры. Дополнительные удобства: БОЙЛЕР для непрерывного горячего водоснабжения, КОНДИЦИОНЕР для комфортного микроклимата в жаркое время года. Теплые ПОЛЫ Отличное предложение как для проживания, так и для инвестиции . - Документы хорошие Приобреталась кв по инвестиционному договору от застройщика. Полная стоимость в договоре. Альтернатива не нужна . Обременений нет. Подходит под ипотеку Один взрослый собственник, Никто не прописан. Рs Обратите внимание, в профиле есть ещё несколько квартир в данном доме / районе
Код объекта: 1907009. Продажа просторной, светлой квартиры в кирпичном доме. Просторная комната с лоджией и кухня. Санузел совмещен был изначально, и он требует ремонта. Хороший чистый подъезд. Более 5 лет в собственности. Оин собственник
Код объекта: 1888265. ОТ СОБСТВЕННИКА квартира с ФРЕСКОЙ в сердце Балашихи Быстрый выход на сделку Два взрослых продавеца, все документы собраны неЗалоговая, неБанкротство Центр БЕЗ СУЕТЫ пятиминутная доступность ИНФРАСТРУКТУРЫ ДЛЯ КОГО квартира идеальна для покупателей , которые ценят удобство и комфорт. Семьи с детьми, профессионалы, покупатели из регионов- вам будет здесь уютно и безопасно. Преимущества расположения: - развитая социальная и транспортная инфраструктура района: близость к торговым центрам, школам, детским садам, аптекам и спортивным клубам; - лёгкий доступ к основным транспортным магистралям и станциям метро; - зелёный и тихий район с хорошей экологической обстановкой. Планировка и площадь: - общ. площадь 74 кв. м, из которых 47 кв. м — жилая площадь; - S кухни - гостиной 26(18+8) кв. м; - большая ванная с джакузи. -огромная лоджия 7м2 Ремонт: 2007 году сделан капитальный ремонт 1. Замена проводки и установка дополнительных розеток 2. Устройство новых полов на стяжку - паркетная доска в жилых помещениях, - теплые полы в прихожей, ванной, на кухне 3. Замена радиаторов отопления , окон и балконных блоков ( дерево, двойные с жалюзи), межкомнатных и входной двери 4. Выравнивание стен, навесной потолок, потолочные светильники, несколько сценариев освещения 5. Замена сантехники и полотенцесушителя в ванной 6. Остекление лоджии Дизайнерский ремонт делали для себя с использованием качественных материалов и технологий, Встроенная техника и мебель на кухне холодильник и посудомоечная машина Bosh варочная панель и электрический духовой шкаф Bosh вытяжка, кондиционер Домовая территория ухоженная,чистый подъезд, 2 бесшумных лифта ( грузопассажирский и пассажирский), функционирует мусоропровод, предусмотрена комната для консьержа, пандус. Две спальни и гостиная с роялем для уютных семейных вечеров, тишина как часть мелодии. Эта квартира идеально подойдёт для покупателей , которые ценят удобство и комфорт. Семьи с детьми, где растут музыканты или чемпионы для вас лучшая музыкальная школа имени Свиридова, где дети играют на инструментах 19вв, а спорт в приоритете -5 мин. пешком футбольный и гимнастический центр Метеор,бассейн и теннисные корты. Ледовый дворец для фигуристов и хоккея. Профессионалы, покупатели из регионов- вам будет здесь уютно и безопасно. Позвоните нам прямо сейчас, чтобы узнать больше и записаться на просмотр! Мы гарантируем безопасную сделку и юридическую поддержку нашим Клиентам. Работать с нами выгодно и надёжно: в МИЭЛЬ самый высокий уровень проверки объектов
Впервые сдается удобная студия в новом жилом доме с хорошим ремонтом из качественных и дорогих стройматериалов, делали для себя. Новый дом с хорошей транспортной доступностью. Метро Медведково 15 минут. Автобус ходит каждые 5 минут. Вся мебель и бытовая техника новая, встроенный кухонный гарнитур со всей бытовой техникой - большой 2-х камерный холодильник, духовка, СВЧ, вытяжка, плита электрическая стеклокерамика. Двуспальная кровать с ортопедическим матрасом новая. Кондиционер. Теплые полы. Для одежды большой встроенный шкаф- купе. Окна большие, качественные стеклопакеты. Квартира очень светлая , теплая. Высокие потолки , много воздуха. Красивая и современная входная группа, чистый подъезд, видеонаблюдения. Экологически чистый район, старый обжитой район М.О. Ст. Перловская в пешей доступности, с развитой инфраструктурой: рядом очень много парков, зелени, храмы, магазины продуктов и здорового питания, школы, автобусная остановка. Парковка наземная, места есть.
Собственник! Без комиссии. Нoвый рeмонт, чистые просторные со всeм необходимым апартаменты На первый месяц скидка 2000р! В жилье ecть вce для кoмфopтнoгo пpoживaния: - Кухня сo вceй мeбeлью и бытовoй тeхникой. - Вместительный шкаф и вешалки пoд вещи - 2 комфортных раздельных спальных места: двуспальный диван и двуспальное место на 2-м ярусе (см. фото) - Хороший интернет как Wi-fi, так и проводной! До метро Шереметьевская 9 мин пешком. Это московское метро (МЦД1) с проездом по карте тройка. До центра Москвы всего 25-30 минут (м. Окружная, Савеловская, Белорусская). Все плюсы загородной жизни: тишина, спокойствие и свежий воздух и рядом вся необходимая инфраструктура города: ТЦ, супермаркеты, кафе и салоны красоты. Доставки (озон, ВБ, Вкусвилл, пятерочка, суши, пицца и др.). Есть зона барбекю и место куда поставить самокат или велосипед. Залог 30 т.р. - разбивается на 2 месяца, возвращается при выезде Все честно - договор и документы у меня есть. Звоните и приезжайте!
Квартира в 5 минутах пешком от метро Котельники. Лучшая цена за метр в этой локации! Свежий ремонт, остается вся мебель и бытовая техника. Тихий зеленый двор, спокойные соседи. В двух шагах магазин Metro, где огромный выбор продуктов и товаров для дома по оптовым ценам (регистрация не нужна). Вся инфраструктура в шаговой доступности. Идеальные документы: прозрачная история, один взрослый собственник, ДКП больше 5 лет. Никто не прописан. Обременений нет В услугах посредника не нуждаюсь, агентский договор не заключаю, бонусов не выплачиваю.
Арт. 117609763 Уютная однокомнатная квартира у мцд Реутов! * Квартира светлая, тёплая и комфортная для проживания. * Выполнен косметический ремонт — можно сразу заехать и жить. * В подарок остаётся новая кухня и бытовая техника ( стиральная машина, варочная панель, духовой шкаф, холодильник) , приобреталась в 2025 году, находится на гарантии. Расположение и инфраструктура * В 3 минутах пешком — станция МЦД-4, до центра Москвы всего 20 минут. *От метро Новокосино-15 минут. *Удобный выезд на МКАД. * Рядом находятся крупные торговые центры "Карат" и "Экватор". *Около дома-пятерочка, аптеки, пвз, Территория фитнеса. * В шаговой доступности школы и детские сады — идеальный вариант для семьи. Эта квартира отлично подойдёт как для комфортного проживания, так и для выгодного вложения. Звоните, чтобы записаться на просмотр! Сделки клиентов имеют юридическое сопровождение. Бесплатно окажем содействие в одобрении ипотеки у банков партнеров с приятной скидкой по ипотечным ставкам. Один собственник, обременений нет, свободная продажа.
СВОБОДНАЯ ПРОДАЖА! Продаётся светлая, уютная, просторная квартира в теплом монолитном доме. Сделан капитальный ремонт с полной заменой электрики и сантехники. Квартира с качественным ремонтом. Консьерж. Хороший социальный состав. Прекрасно развита социальная и торговая инфраструктура района: школа, детские сады, магазины, аптеки, салоны красоты, отделения банков, кафе и рестораны. Рядом с домом находится Спортивный комплекс Старт с тренажерными залами, спортивными секциями для взрослых и детей, с одним из лучших футбольных полей региона. В двух минутах от дома построен и в начале 2024 года будет сдан комплекс с девятью бассейнами. Транспортная доступность: МЦД 4, "Реутов" в десяти минутах ходьбы от дома. Остановка маршрутки до метро Новогиреево и метро Реутово рядом с домом. Один взрослый собственник. Быстрый выход на сделку! Арт. 111925120
Продаём светлую уютную 1-комнатную квартиру студийной планировки в 5 минутах ходьбы от ж/д станции Тайнинская Ярославского направления Квартира расположена на 2-м этаже 3-этажного монолитного дома 2012 года постройки Общая площадь квартиры: 31,6 кв.м. Комната: 18 кв.м. Кухня: 6 кв.м. Совмещённый санузел Дом с ограниченной территорией Чистый подъезд, приличные соседи Благоустроенный двор Рядом с домом парк, детская площадка СВОБОДНАЯ ПРОДАЖА ПОЛНАЯ СТОИМОСТЬ В ДОГОВОРЕ 1 взрослый собственник с 2018 года ВОЗМОЖНА ИПОТЕКА (поможем взять ипотеку по самым выгодным ставкам)
Продается просторная 3-комнатная квартира в спокойном от суеты районе! Общая площадь — 68,2 кв. м, расположена на 2-м этаже 5-этажного панельного дома, построенного в 1997 году. Квартира находится всего в 9 минутах пешком от метро Долгопрудная, что делает её идеальным вариантом для тех, кто ценит время и комфорт. В квартире есть косметический ремонт, который позволит вам без лишних хлопот создать уютное пространство по своему вкусу. Просторная кухня площадью 12 кв. м станет отличным местом для семейных обедов и встреч с друзьями. Из окон открывается вид во двор, что гарантирует тишину и спокойствие. В квартире одна большая лоджия и отдельный санузел, что делает планировку удобной и функциональной. Дом находится в хорошем состоянии, всегда в наличии парковочные места для вашего автомобиля. Продажа квартиры чистая, без обременений и долгов. Один взрослый собственник. Оформление сделки возможно в ипотеку, что делает покупку доступной для большинства. Все документы готовы к сделке, что позволит вам быстро и без проблем стать новым собственником. Не упустите шанс приобрести эту замечательную квартиру! Записывайтесь на просмотр, и мы с удовольствием покажем вам все её преимущества. Ждем вас!
Долгосрочная аренда! Впервые сдается двухкомнатная квартира в ЖК "Ньютон". Комнаты изолированные, зал (17,7 кв.м.), спальня (8 кв.м.), кухня (8 кв.м). Санузел совмещенный, два кондиционера "Mitsubishi", лоджия с оборудованным местом отдыха и видом во двор. Имеется необходимая для комфортного проживания мебель и бытовая техника (холодильник, стиральная машина-автомат, посудомоечная машина, духовой шкаф, индукционная варочная панель, СВЧ, два телевизора), водонагреватель. Подвесные потолки, на лоджии установлен теплый пол. В зале вместительный шкаф, компьютерный стол и компьютерное кресло, стол (стекло), новый диван. Остекление-панорамное. До ст. "Мытищи" 5-7 минут пешком. Рядом ТЦ"Красный кит". Предложение для одной женщины или семейной пары. Строго не курящих и без животных. Дополнительно оплачиваются: свет, вода, водоотведение, отопление по счетчикам.
Продажа 1 комнатной квартиры на 5 этаже 22 этажного дома по адресу: г. Мытищи, ул. Академика Каргина, д. 23 А, 6 подъезд. Площадь квартиры: общая 43.6 м, жилая 17.8 м, кухня 13.4 м. Квартира с хорошим ремонтом, мебелью, техникой. Высота потолков 3 м, большая лоджия с выходами из кухни и комнаты. Окна выходят на улицу. Совмещенный санузел. Лифты: 1 грузовой, 2 пассажирский. Во дворе бесплатная парковка, многоуровневая парковка. Детская и спортивная парковка. Развитая инфраструктура района. Собственность более 5 лет, покупалась по ДДУ, 1 собственник с застройки дома. Окончание строительства дома август 2020 г. Прописанных нет. Обременений нет. Свободная продажа. Продажа от собственника, без комиссий. Ипотека возможна. Полная стоимость в договоре. Стоимость обсуждается. Риэлтор есть, в помощи не нуждаемся!















































































