


3 060 713 ₽/м²
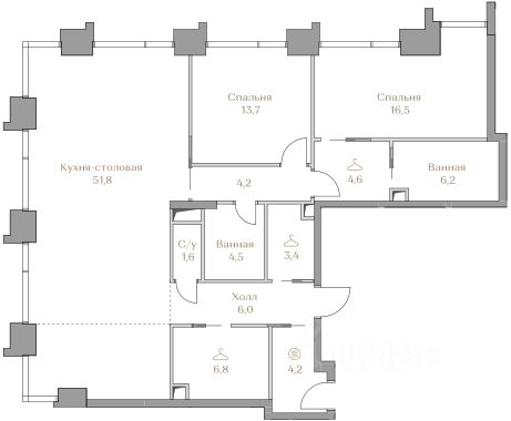
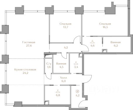
В историческом районе Хамовники продаются 2-к апартаменты площадью 82.50 кв.м, расположенные на 3 этаже делюкс-резиденции Саввинская 27 от Level. Преимущества: - 51 апартамент и 10 пентхаусов площадью 83-346 м2 с возможностью перепланировки и объединения; - все апартаменты с видом на Москву-реку; - бассейн 25 метров, тренажёрный зал, зал для занятий йогой и пилатесом; - бизнес-лаундж с отдельными переговорными; - детская комната с выходом во внутренний двор; - зимний сад; - библиотека с настоящим дровяным камином; - салон красоты и спа премиум-класса Mahash Spa; - подземный паркинг на 91 машино-место; - ресторан с летней террасой; - продуманное благоустройство на закрытой территории с охраной и видеонаблюдением, с детской площадкой и местом для тихого отдыха. Расположение и инфраструктура: Дом построен именно в Хамовниках неслучайно, ведь это стиль жизни, к которому вы привыкли: лучшие школы, спортивные секции, места для отдыха, прогулок и комфортная логистика до исторического центра или Москва-Сити. - 2 минуты до Садового кольца и 6 минут до ТТК на машине; - 11 минут пешком до "Лужники"; - 20 минут пешком до станции метро "Спортивная"; - в окружении более 15 детских садов, в том числе 9 частных; - в пешей доступности расположены 11 школ, 4 из которых входят в топ-20 школ Москвы по версии Forbes; - в окружении 5 парков, в том числе парк "Новодевичьи пруды", усадьба Трубецких, парк Горького. Отличная транспортная доступность: Еще одно преимущество резиденции - удобная транспортная доступность. Несмотря на близость к центру, путь на автомобиле до ТТК займет 2 минуты, до Садового кольца 5 минут. В пешей доступности находятся три станции метро: Спортивная, Фрунзенская и МЦК Лужники. 2-комнатная квартира от застройщика станция Лужники (МЦК).









































































































































































